musée d'éthnographie (bd carl-vogt), genève

infos

Maître d’ouvrage  Ville de Genève
Lieu  Genève
Concours sur invitation  2008
Surface  11'680 m2
Volume  58'700 m3
Programme  Extension du musée d'ethnographie et rransformation du bâtiment existant
Team projet  Philippe Meier, Amalia Jimenez, Tiago Mendez 
Ingénieur civil  Grignoli, Muttoni partner

 

 

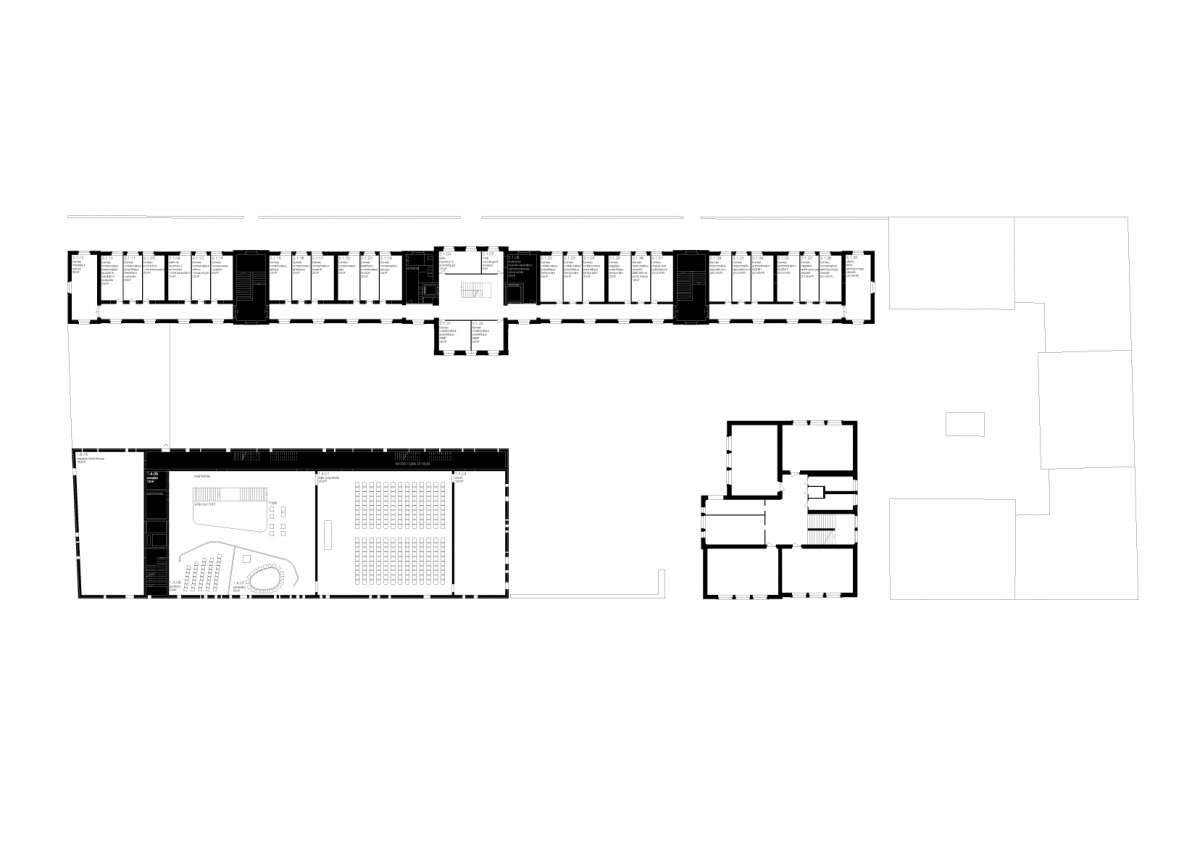
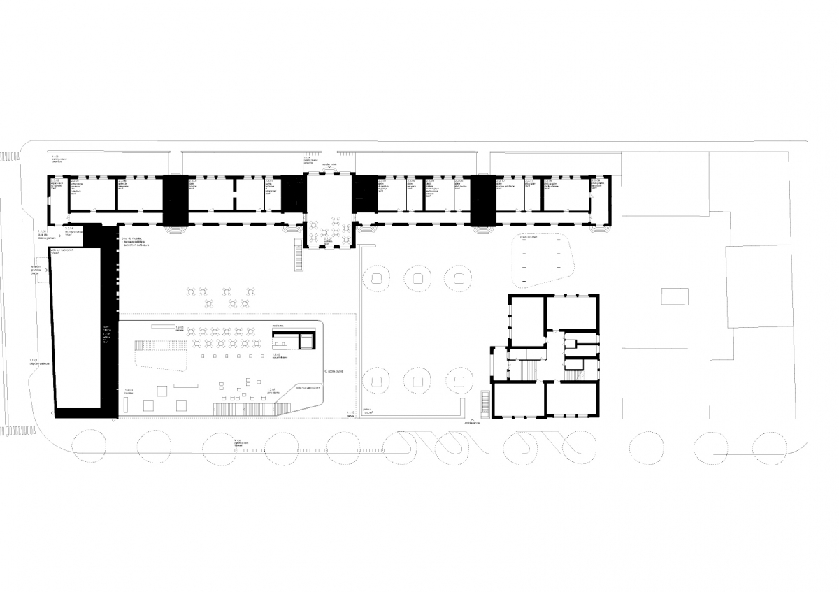
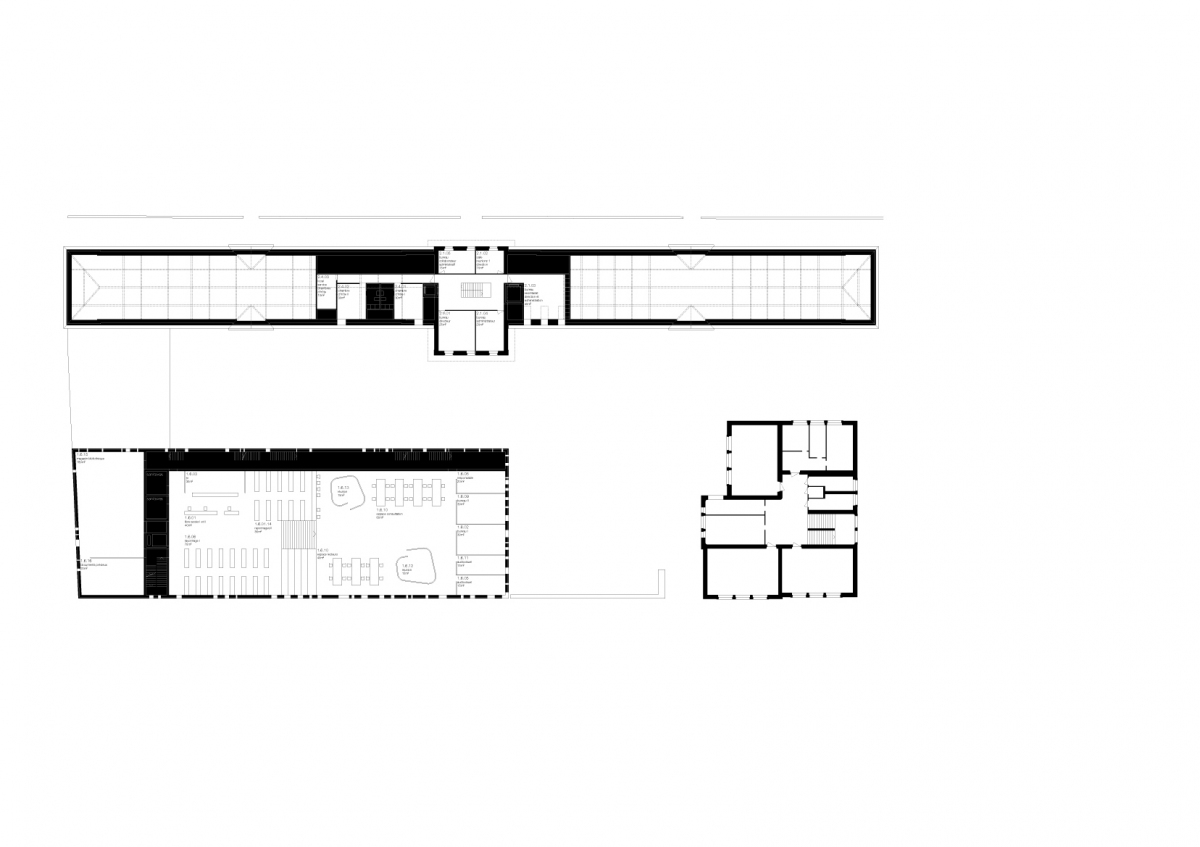
Au cœur d’un quartier caractéristique du dix-neuvième siècle, le nouveau bâtiment s’insère dans le lieu de manière simple. Il tient compte de l’état antérieur et assure un gabarit proche de l’actuel musée, de l’école primaire et du socle de la tour de la Télévision Suisse Romande. La mise en évidence de la linéarité de la volumétrie existante est rendue par une transparence au niveau du rez-de-chaussée.

Les accès au musée et au préau de l’école sont clairement différenciés tout en conservant une forme de mémoire de la situation antérieure. Au rez-de-chaussée, un projet de sol minéral conduit de l’extérieur à l’intérieur et définit les espaces dédiés au musée en tant qu’entité composée de deux bâtiments: l’existant et le neuf.

 

 

La coupe du projet et les parcours deviennent les enjeux majeurs de la conception. En effet la plupart des espaces muséaux se situant en sous-sol, le système distributif devient le lien autour duquel les espaces s’articulent dans leur spatialité propre et leur lumière. La disposition de la programmatique renvoie à la notion d’empilement que la statique aide à résoudre.

Avec ses percements particuliers, ce prisme pur qui flotte au dessus d’un hall d’accueil transparent est la représentation de la programmatique culturelle. En effet s’il n’est pas à proprement parlé le contenant du musée, les salles d’exposition étant sous la cour, l’apparence abstraite de ce volume renvoie à la notion d’institution au sens général du terme.