lundin petroleum, meinier

infos

Maître d’ouvrage  Lundin Petroleum
Lieu  La Pallanterie, Genève
Dates projet  2000 - 2004
Dates réalisation  2004 - 2006
Surface  2'895 m2
Volume  10'130 m3
Programme  Bureaux, laboratoires de recherche, parking souterrain
Team projet  Philippe Meier, Jean-Daniel Pasquettaz, Thomas Bolliger, Mario Monteiro, Sylwia Braun, Ana-Inès Pepermans, Samir Zid 
Ingénieur civil  Amsler & Bombeli
Ingénieur cv  SB Technique
Géomètre  Christian Haller
Artiste  Patrick Tschudi
Photographe  Jean-Michel Landecy

 

 

Le bâtiment est caractérisé par une enveloppe métallique striée, dans laquelle s’inscrivent de larges bandeaux vitrés. Pour atteindre un dessin très simple de la façade, un soin particulier est apporté à l’étude des détails et au choix des matériaux. La mise en œuvre permet de renforcer l’abstraction recherchée au niveau du concept architectural : une bande vitrée sans modénature, et des parties pleines avec un bardage en fines bandes d’aluminum thermolaqué de couleur anthracite, qui assurent la continuité de la matérialité. Les fenêtres en longueur réalisées en verre collé possèdent des stores intégrés au double verre.
Au Nord-est, la présence d’une importante conduite enterrée de gaz naturel nécessite, selon la réglementation en vigueur, de creuser le volume 'habitable'. Des loggias se développent ainsi sur trois niveaux, offrant un prolongement extérieur aux espaces attenants.

 

 

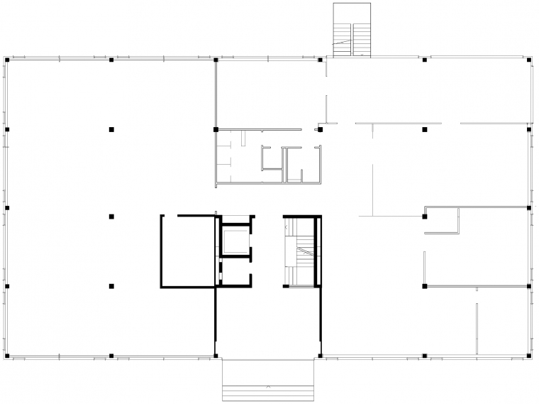
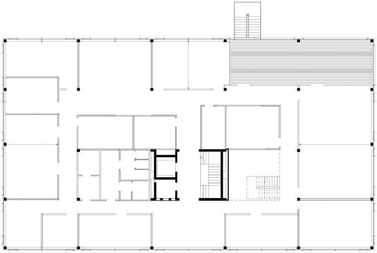
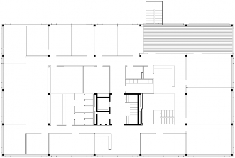
Les espaces de travail sont libérés de toute contrainte d’éléments porteurs et sont partitionnés en fonction de la programmatique souhaitée par le Maître d’ouvrage. Les cloisons vitrées qui séparent les couloirs des bureaux – conçues spécialement pour ce projet –, permettent une très grande transparence, tout en mettant en place des stores microperforés dans l’épaisseur de la paroi. L’ensemble des sols est traité avec un parquet en bambou, faisant écho à un plafond suspendu en tôle déployée en aluminium éloxé. 
Les bureaux sont chauffés et rafraîchis par une technologie 'tout air', faisant appel à la géothermie. Il n’y a plus de radiateurs ni de chauffage par le sol. La pompe à chaleur réversible permet d’apporter le confort en hiver et de diffuser en été un air rafraîchi. Cette réflexion sur la technologie du bâtiment, s’inscrit pleinement dans le cadre d’une pensée sur le développement durable.