complexe scolaire, 6ème prix, monthey

infos

Maître d’ouvrage  Commune de Monthey
Lieu  Monthey, Valais
Concours  1990 (6e prix)
Surface  7'200 m2
Volume  54'200 m3
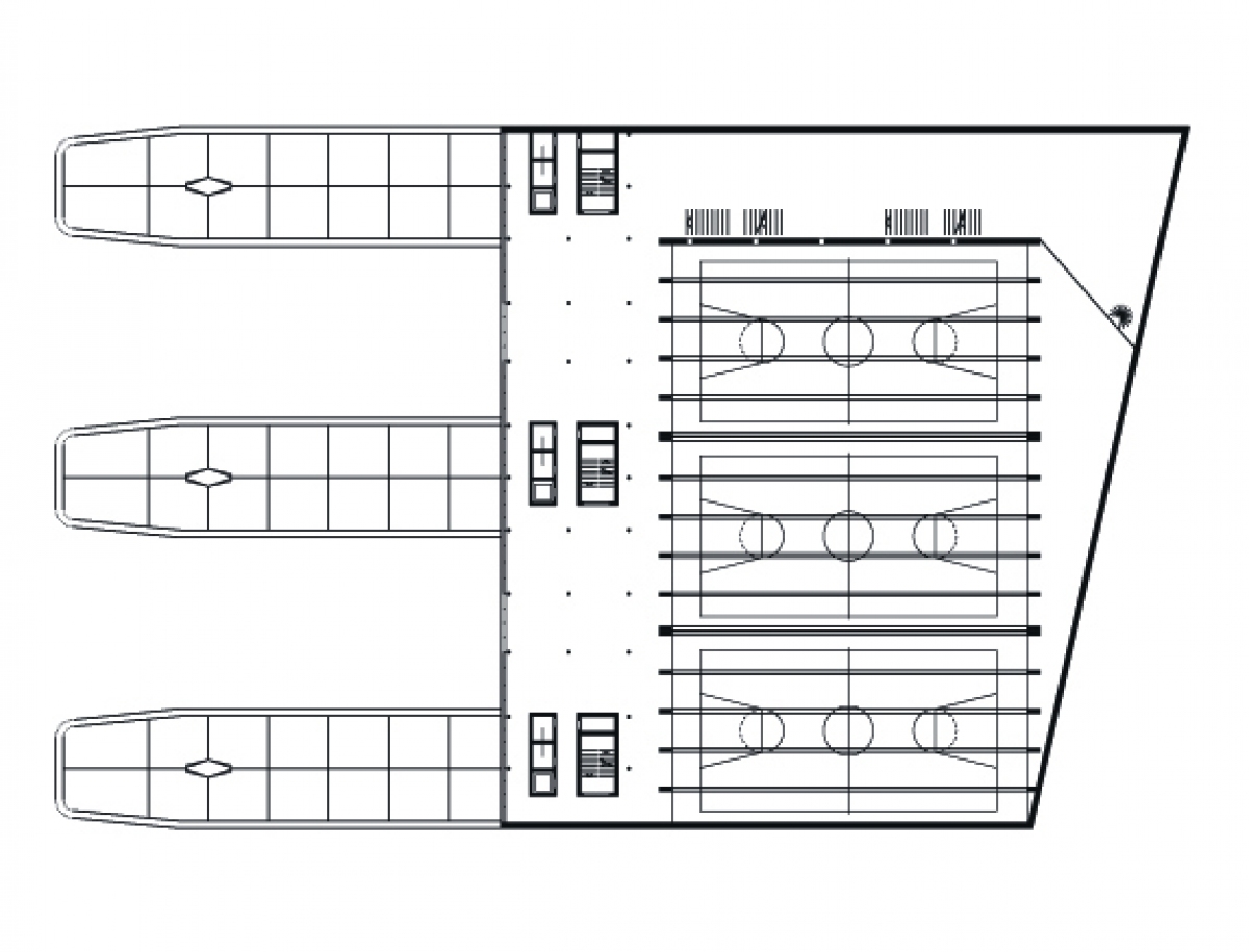
Programme  Salles de classes, salles spéciales, salle de gymnastique triple, caserne de pompiers
Team projet  Philippe Meier, Pascle Abbé, Franzisca Gautschi 
Architecte associée  Christine Sjöstedt
Ingénieur civil  Thomas Jundt


 

 

Adossé à la montagne et en limite d’une ancienne plaine marécageuse, le projet de cette école propose, d’une manière radicale, la vision d’un édifice scolaire se détachant de son contexte urbain hostile (route à grand trafic, centre de pompiers, parking) tout en recherchant le rapport visuel au paysage plus lointain des Préalpes.

 

 

Un grand socle contenant les éléments collectifs du programme tels que salle de gymnastique, aula, salles spéciales, émerge du flanc montagneux. De ce socle s’élancent trois bâtiments comprenant les classes qui vont chercher air et lumière. Ces grands «wagons» métalliques expriment le statut de l’institution dans cette périphérie assez chaotique tout en étant connotés, dans leur matérialité, par le caractère industriel de la ville de Monthey.