collège 'la planchette', 1er rang, aigle

infos

Maître d’ouvrage  Commune d'Aigle
Lieu  Aigle, Vaud
Présélection  2000 (1er rang)
Dates projet  2000 - 2004
Dates réalisation  2005 - 2006
Surface  1'990 m2
Volume  8'210 m3
Programme  12 salles de classe
Team projet  Philippe Meier, Jean-Daniel Pasquettaz, Martin Jaques, Jean-Christophe Mathen, Ana-Inès Pepermans, Marc Losenegger 
Ingénieur civil  Amsler & Bombeli
Ingénieur cvs  Raymond Moser
Ingénieur e  Dumont Schneider
Ingénieur façade  BCS
Direction des travaux  Regtec
Géomètre  Haymoz-Bühlmann
Photographe  Claudio Merlini

 

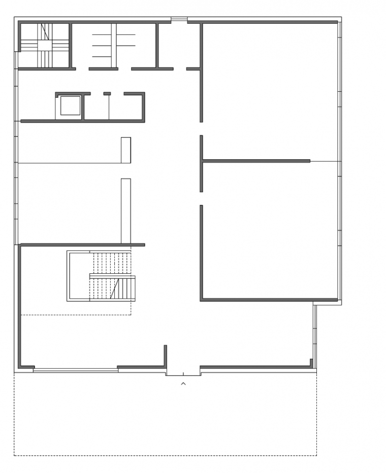
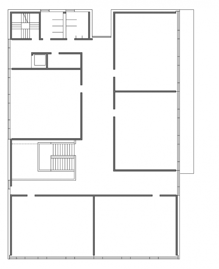
Dans la vallée du Rhône, le bâtiment est conçu comme une sorte de sculpture, posé sur un sol parfaitement horizontal en raison de la présence en sous-sol d’un abri anti-atomique de la Protection civile suisse. Il s’agit d’un prisme pur, auquel on a enlevé des parties : au sud pour créer un préau couvert, au nord pour ouvrir la distribution intérieure vers les montagnes. A l’est on a sorti un 'tiroir' pour accueillir les deux salles enfantines.
Le plan dispose des volumes intérieurs de béton brut, composés de manière un peu aléatoire pour mieux jouer avec la lumière naturelle. Les espaces communs se trouvent entre ces surfaces abstraites qui entourent chacune des classes. L’ escalier principal devient le point de référence spatiale du parcours. 

 

 

D’un point de vue structurel, l’ensemble des murs en béton sont porteurs et sont conçus comme étant des 'poutres-voiles'. A l’intérieur, tous les panneaux de coffrage ont été dessinés afin de faire coïncider les joints entre eux, sur les murs et les plafonds. Les portes d’accès aux classes sont vitrées avec un verre bleuté qui annonce la déclinaison de tons de bleus au niveau des sols qui varient à chaque unité d’enseignement. 
A cet intérieur en béton minimaliste répond une peau extérieure en verre sérigraphié qui thématise par son motif des 'impressions d’enfance' : des formes libres, qui évoquent autant la cristallisation de l’eau en neige que le 'tag' new-yorkais de l’artiste Keith Haring.