centre de contrôle autoroutier, 1er prix, st-maurice

infos

Maître d’ouvrage  Canton du Valais, Confédération
Lieu  St Maurice, Valais
Concours  2008, 1er prix
Dates projet  2008 - 2009
Dates réalisation  2010 - 2011
Surface  3'115 m2
Volume  14'125m3
Programme  Halle de contrôle des véhicules, poste de police cantonale, place de stockage des véhicules
Team projet
  Philppe Meier, Frank Herbert, Ludovic Durand, Victor Ferreira, Amalia Jimenez, Cathie Martinie, Joana Pimenta, Michael Schaub, Linda Serra
Direction des travaux  architech sa (2011)
Ingénieur civil  Conus & Bignens
Ingénieur cv  GD Climat
Ingénieur s  GD Climat
Ingénieur e  Emeltec
Géomètre  G Rey-Bellet
Artiste  Renate Buser
Photographe  Yves André

 

 

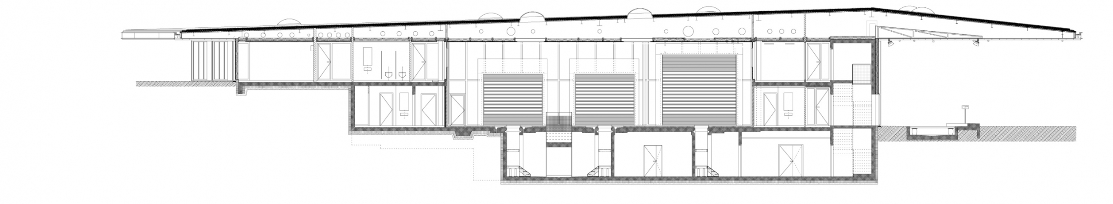
Situé à la sortie 'Saint-Maurice' de l’autoroute A9, le centre de compétence pour poids lourds et véhicules accueille une programmatique diversifiée. Un centre ce contrôle des poids lourds circulant sur le réseau autoroutier valaisan et une aire de stockage de ces véhicules, en cas d’intempéries sur les cols alpins. A cette activité, se sont ajoutés une halle de contrôle périodique des véhicules légers et lourds pour le bas Valais, ainsi qu’un poste de police régional.
Le parti architectural proposé face à cette demande complexe est avant tout un 'projet de sol'. Une réponse à la contrainte des circulations complexes liées aux différents programmes à installer sur le lieu : une plaque de bitume qui définit clairement le caractère artificiel de l’intervention dans le paysage. Sa forme est dictée par les limites territoriales autant que par les fonctions. 
Cette plateforme d’échange s’inscrit en douceur dans la topographie, dont elle révèle la nature par quelques 'pliages'. Au centre, plusieurs' fleurs' la découpent pour y inscrire des éléments de nature, tout en remplissant le rôle de puits d’infiltration pour les eaux météorites. 

Sur cette plaque minérale, le bâtiment vient se poser délicatement comme un 'pétale' de métal et de verre, recouvert d’une fine pellicule végétale. Ici la toiture s’exprime comme si l’on avait arraché un morceau de sol naturel, pour l’élever au-dessus du nouveau sol artificiel. Depuis l’autoroute, cette nature reconstituée devient le signe de la nouvelle institution.
La coupe territoriale a mis en exergue une différence de niveau entre les deux parties du site à disposition, que le projet reprend dans la mise en place de la répartition programmatique. Au nord-ouest, sur la partie supérieure se situe l’entrée au 'bureau des automobiles' (CCRV). Cet espace est en mezzanine sur la grande halle de contrôle, laquelle est bordée sur sa face sud-est par les locaux de la police.
La structure de l’ensemble est prévue avec de grandes poutres en acier composé-soudé permettant de franchir le porte-à-faux protégeant les camions contrôlés. Les façades extérieures sont traitées avec une peau en tôle déployée, celles intérieures avec des cassettes métalliques, affirmant le caractère industriel de l’ouvrage.