Maître d’ouvrage Commune de Collombey-Muraz
Lieu Collombey-Muraz, Valais
Concours 2012 (1er prix)
Dates projet 2012 - 2013
Dates réalisation 2014 - 2017
Surface 2'500 m2
Volume 11'850 m3
Programme Extension de 9 classes, transformation de 12 classes
Team projet Philippe Meier, Martin Jaques, Ana-Inès Pepermans, Istabrak Bellara, Sébastien Ledortz, Daniel Baptista, Arnaud Mottet
Architecte associé Cagna + Wenger
Ingénieur civil Muttoni & Fernandez ingénieurs conseils, Kurmann & Cretton
Ingénieur cv Tecnoservice
Ingénieur e Pelco
Ingénieur s Tecnoservice
Ingénieur façades Arteco
Géomètre Rey Bellet
Photographe Yves André
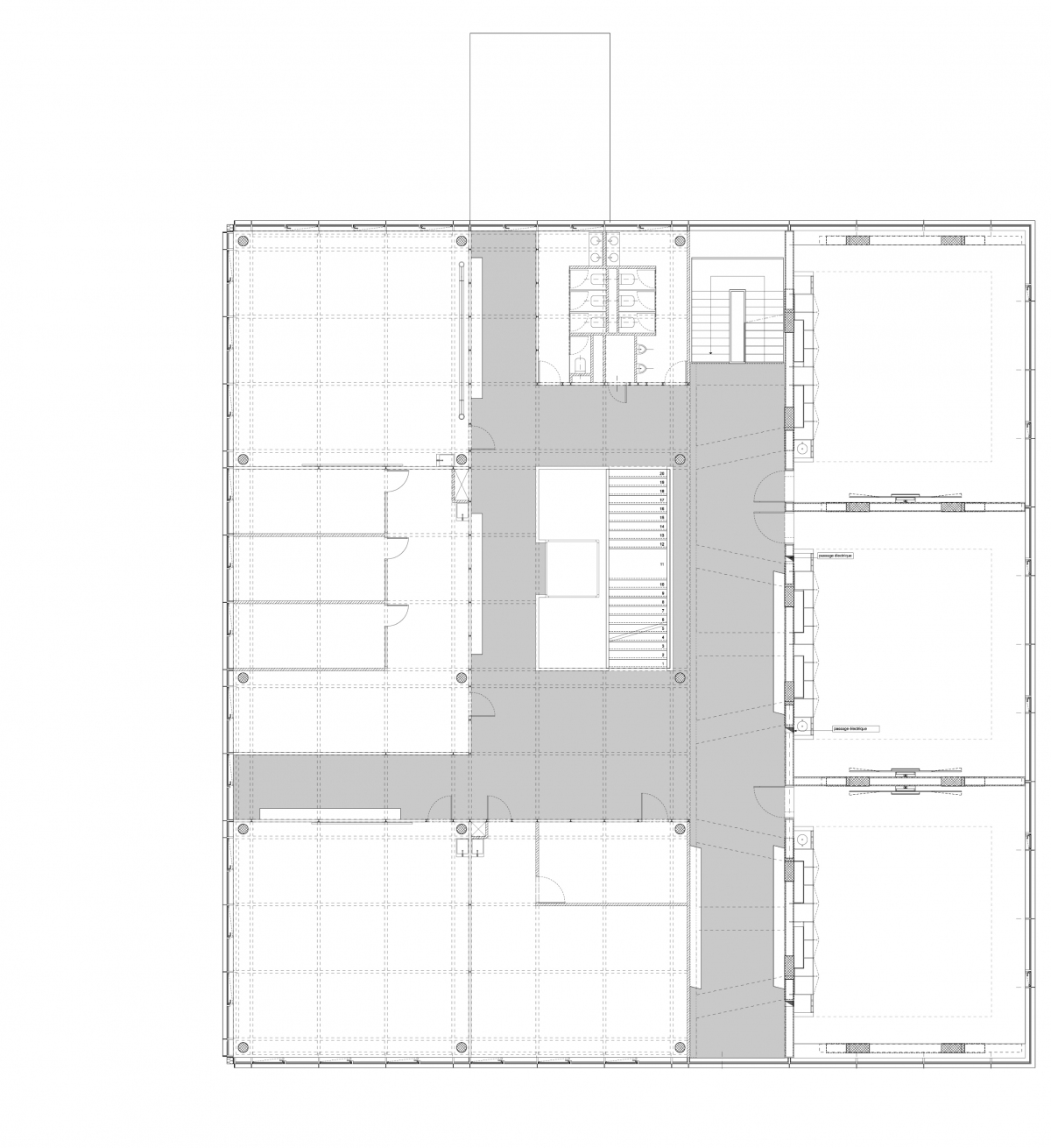
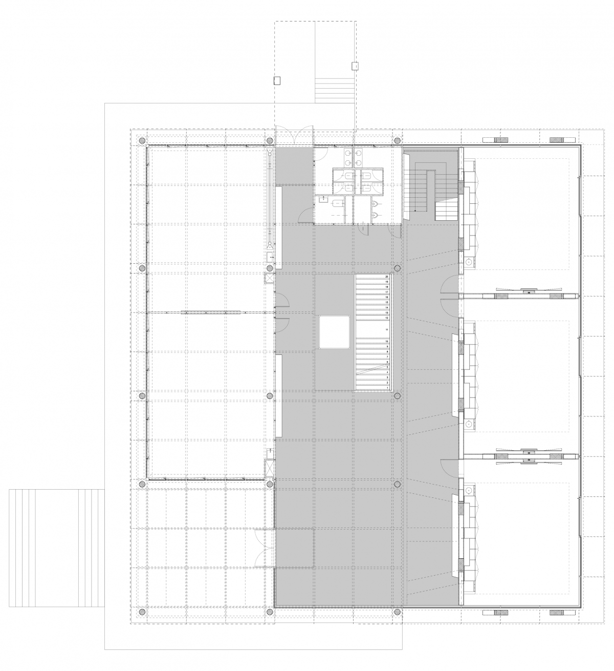
Le système CROCS a permis de développer sous l’égide de plusieurs concepteurs, dont Bernard Vouga et Gilbert Charrot, un principe de construction modulaire adapté aux bâtiments scolaires. Parmi les édifices pionniers, l’école des Perraires de Collombey-Muraz en est le dernier exemple conservé dans son état presque original. Le canton du Valais l’a remarqué en initiant une démarche de protection de l’ouvrage (en cours). Les caractéristiques principales du système CROCS sont une trame constructive de base de 2.40 m., un espace structurel de 0.60 m. (double axe) qui se marque en façade et propose une solution au problème de l’angle du mur-rideau, ainsi qu’une structure porteuse ponctuelle et métallique.
Le projet de transformation et agrandissement de l’école des Perraires prend le parti de réécrire le projet CROCS par la sélection des éléments qui en font la caractéristique, la «signature» et la richesse. Il s’agit ici de conserver le caractère « villa Savoye » de l’origine, à savoir un piloti très légèrement détaché de la peau du rez-de-chaussée et des étages flottants et «lisses» au dessus. De plus le principe des quatre façades «identiques» est poursuivi tout en différenciant légèrement le dessin de la nouvelle partie, la matérialité restant en aluminium éloxé.
Le nouvel escalier de l’extension est positionné dans une situation de «service», au nord, avec une transparence apportant de la lumière aux distributions. Les nouvelles classes, au nombre de trois par étage, sont placées face au grand paysage alpin.
D’un point de vue structurel, l’extension participe à la stabilisation de l’ensemble, par la présence d’éléments en béton en forme de «V» qui s’installent dans l’espace et le caractérisent, tout comme la modulation métallique le faisait pour la partie existante. Les remplissages intérieurs non porteurs sont bardés d’aluminium en réponse aux panneaux existants.
Le projet par sa compréhension et sa réinterprétation du type CROCS amène à une complète préfabrication de l’enveloppe (six-sept types de pièces différentes) et donc un grand gain de temps de montage et une optimisation des coûts. La configuration du plan, grâce à sa double circulation autour de l’escalier central, permet d’envisager une séparation claire du chantier en deux phases.