ems clair-logis, delémont

infos

Maître d’ouvrage  Privé
Lieu  Delémont, Jura
Mandat direct  2016
Dates projet  2019 - 2020
Dates réalisation  2021-2023
Surface  5'000 m2
Volume  15'900 m3
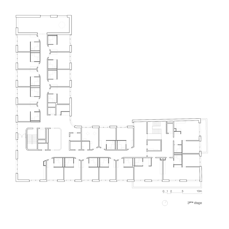
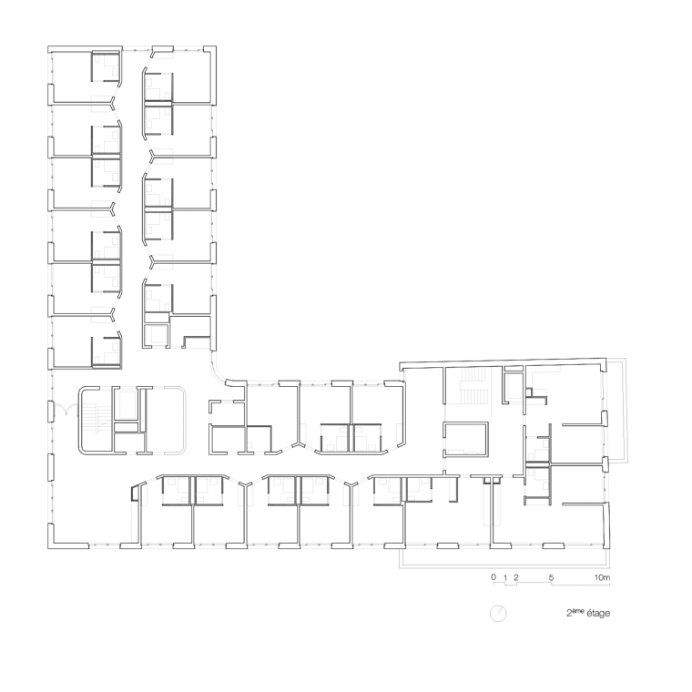
Programme  11 appartements protégés, 50 chambres EMS
Team projet  Philippe Meier, Martin Jaques, Laurence Boyé, Charlotte van den Eynde, Teresa Blanco, Christophe Berther, Clara Caldeira, Boris Lalev, Pierre Moriceau, Amalia Jimenez, Simon Marti, Athena Lopez Aponte, Pénélope Croset
Ingénieur civil  Buchs & Plumey
Ingénieur cv  PLANAIR
Ingénieur e  PLANAIR
Ingénieur s  PLANAIR
Acousticien  PLANAIR
Géomètre  SiTaDel
Photographe  Yves André  

À proximité de la gare de Delémont, le nouvel établis-sement pour personnes âgées « Clair Logis », prend la place d’un bâtiment d’après-guerre dont l’obsolescence thermique, la forte présence d’amiante et une typologie inadaptée à une fonctionnalité contemporaine n’ont pas permis sa réutilisation. En actant une opération de densifi-cation du quartier, le projet prend le parti de préparer une forme urbaine complète, dont la présente réalisation n’est que la première pierre d’un futur édifice à cour et dont les arrondis de la façade intérieure amorcent les contours d’une intériorité en devenir.

Par sa volumétrie et son implantation, l’immeuble affirme une frontalité bâtie et dessine un îlot typique de la ville haute. Il s’attache à trouver un équilibre entre une discré-tion de mise dans le site et une présence architecturale résolument contemporaine.

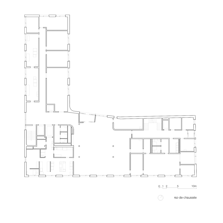
Le programme pour les aînés associe à la fois un service à la personne avec un large réfectoire s’ouvrant sur un étroit jardin linéaire avec, dans les étages, des chambres pour les plus désorientés et des petits appartements pour les plus autonomes. 

 

L’entrée principale de l’institution prend place dans le jardin intérieur arboré, alors que l’accès à la cage d’esca-lier des logements s’effectue le long de la rue des Texé-rans, sous des balcons qui formalisent la présence domestique.

La typologie du plan renvoie au lieu par l’inscription d’une distribution par couloir central dont la morphologie pliée anime les parcours et par la valorisation de l’angle pour y inscrire les espaces communs à chaque niveau.

Le choix de la brique de terre cuite s’inscrit dans une certaine histoire de la région, celle qui a vu s’ériger de belles manufactures ou des industries de renom. La physionomie du projet est rendue grâce une mise en œuvre sobre et élégante, employant des détails de cons-truction typiquement liés à la brique : encadrements, tablettes et corniches qui soulignent la texture de la matière riche en vibrations. Ces modénatures sont conju-guées à l’emploi de menuiseries de couleur bronze et de balustrades en métal au dessin raffiné, confirmant ainsi la réinterprétation de modèles.