collège du chaucey, 1er prix, coppet

infos

Maître d’ouvrage  Commune de Coppet
Lieu  Coppet (VD)
Concours sur invitation  1996 -1997 (1er prix)
Dates projet  1997 - 1998
Dates réalisation  1998 - 1999
Surface  1’990 m2
Volume  7’590 m3
Programme  10 salles de classe, classes spéciales et transformation de 
l’école existante
Team projet  Philippe Meier, Frank Herbert, Thomas Bolliger, Pieter Stolz
Architecte associé  Thierry Moreillon
Direction des travaux  Jean-Daniel Pasquettaz, Guy Musfled, Pierre-André Romanens
Ingénieur civil  Laurent Renaud
Ingénieur chauffage  Olivier Zahn
Ingénieur électricien  Mab Ingénierie 
Ingénieur façade conseil  BCS 
Ingénieur thermicien conseil  Mats-Ola Nilsson
Géomètre Bernard Schenk
Photographe Claudio Merlini

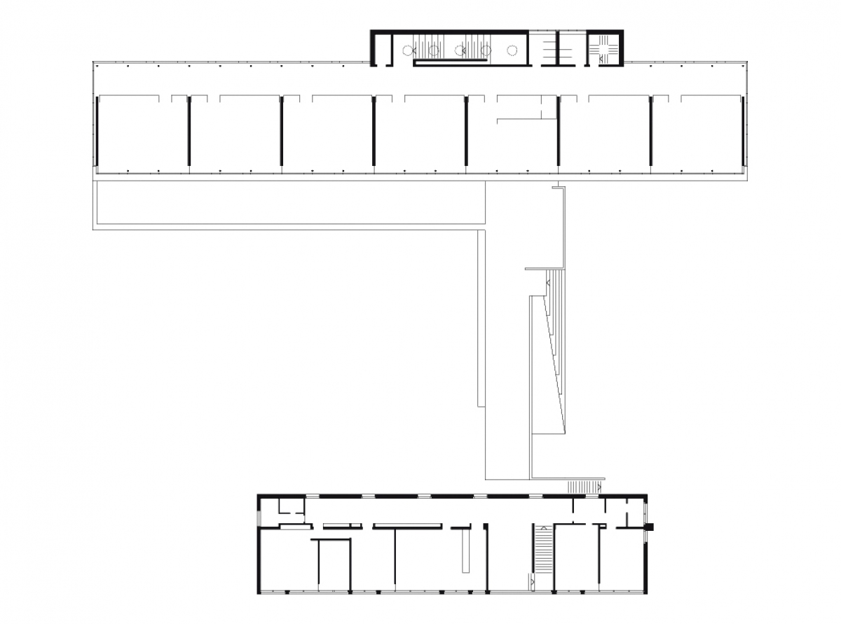
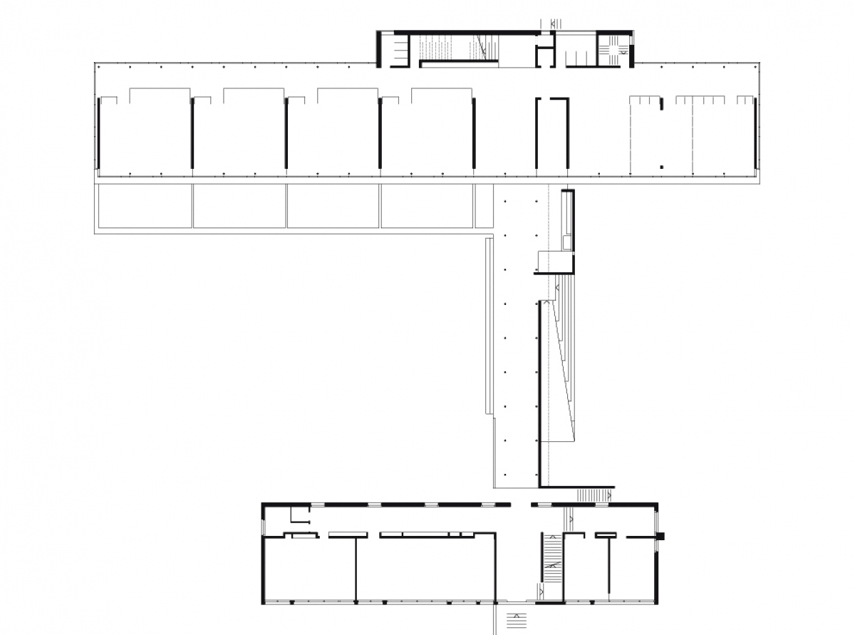
Le nouveau collège du Chaucey s’implante parallèlement à l’école existante tout en reliant les deux constructions par un couvert. Ce dernier définit une nouvelle zone de préau, ouverte sur le parc du château de Coppet et abritée du vent du nord par deux 'murs écran', dont le décalage marque l’entrée principale au complexe scolaire.
Le nouveau bâtiment accueille au rez-de-chaussée quatre classes enfantines prolongées sur l’extérieur par des « classes extérieures » pour les plus petits élèves, permettant une transition entre le préau et la façade. A l’étage, sept modules de classes identiques se suivent le long d’une coursive intérieure vitrée sur le paysage. Au nord un bloc de service comprend les escaliers, les sanitaires et les locaux de nettoyage.
Le rapport structure-enveloppe est envisagé de telle manière à utiliser, à l’intérieur, un minimum de matériaux et de rendre lisible la présence de la structure. C’est la coupe, par sa transparence qui révèle le caractère traversant du lac au Jura. La façade-rideau en verre permet l’appropriation totale de ce paysage que ce soit depuis les classes ou depuis les couloirs.

 

 

 

 

 

 

 

 

 

 

 

Le collège est constitué d’un système porteur lamellaire en béton définissant chacun des espaces de classes et d’une façade vitrée périphérique. La séparation classes - couloirs s’affirme à travers un élément non porteur constitué d’armoires et de hauts-jours en hêtre naturel. Les revêtements de plafonds des classes sont eux aussi traités dans la même essence. L’ensemble des sols est unifié par un linoléum de couleur bleue.