Maître d’ouvrage Ville du Locle, Etat de Neuchâtel, Confédération
Lieu Le Locle, Neuchâtel
Concours à deux degrés 2000-2001 (1er prix)
Dates projet 2001 - 2002
Dates réalisation 2002 - 2004
Surface 6'090 m2
Volume 26'700 m3
Programme Ecole pour les apprentis du secteur automobile
Team projet Philippe Meier, Frank Herbert, Martin Jaques, Marc de Dompierre, Jean-Daniel Pasquettaz
Ingénieur civil Amsler & Bombeli
Ingénieur cv Enerlink
Ingénieur e MAB Ingénierie
Ingénieur s Schumacher Ingénieries
Acousticien AAB Stryjenski & Monti
Ingénieur façade BCS
Géomètre Geosit
Artiste Marcus Egli, Mag Reverdin
Photographe Jean-Michel Landecy
Label Minergie NE 052
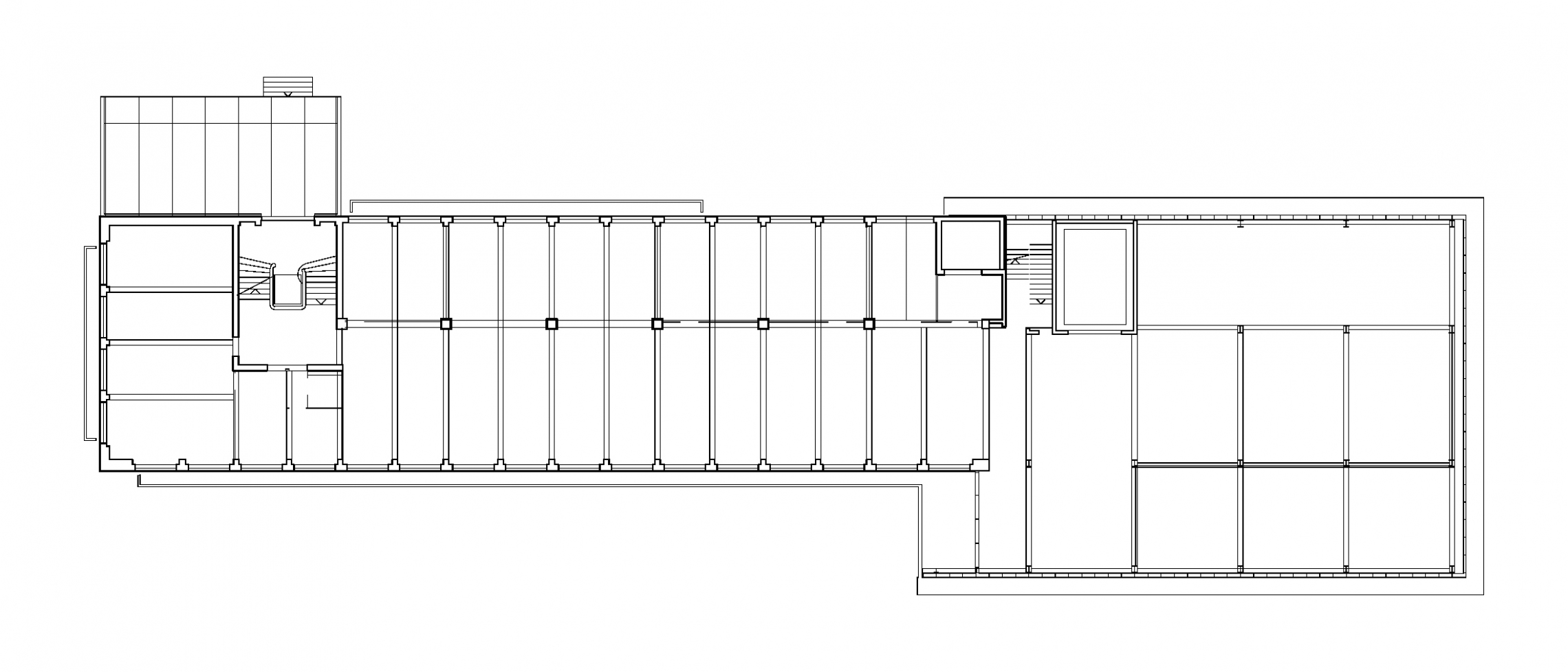
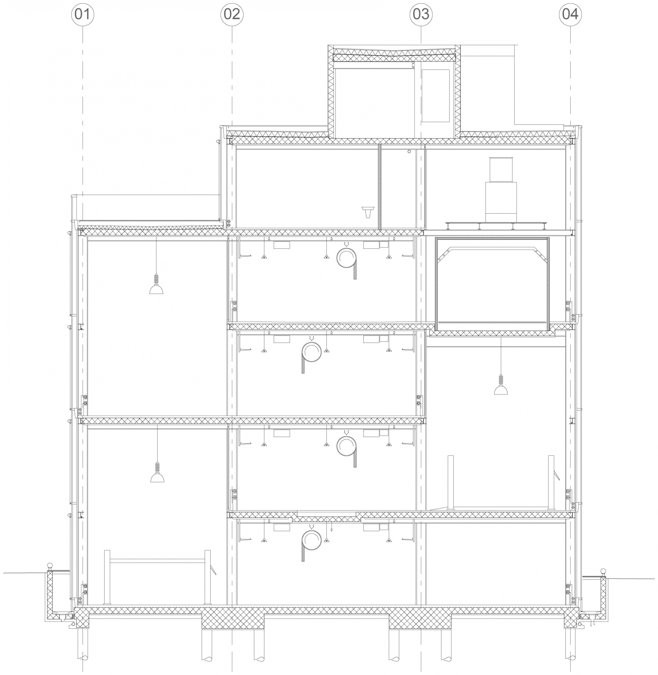
S’agissant de réaliser une école technique dans la partie ouest de la ville, le projet reprend à son compte une implantation dans la trame urbaine du plan Junod, cette grille orthogonale de rues et d’avenues qui se glisse dans un vallon naturel. La volonté affichée de conserver le bâtiment de l’ancien Technicum construit dans les années cinquante, ancre aussi le nouvel édifice dans la ville de manière plus évidente.
Afin de faire coïncider un programme pour des automobiles dans un maillage urbain assez étroit, l’étagement des activités est privilégié sous la forme d’un 'garage vertical'. Pour servir ce programme particulier, un dispositif en coupe l’accompagne en mettant en jeu des doubles niveaux alternés. Une sorte de mise en scène de l’apprentissage de la réparation automobile, un lieu où les véhicules sont hissés sur des machines à bras, où l’on est regardant et regardé. La liaison mécanique – le monte-voiture – devient le cœur distributif de cette école.
La façade de la nouvelle partie est modulée par des panneaux de verre et d’aluminium, qui se composent selon l’orientation. Au sud elle est très ouverte, favorisant l’apport de lumière et la vue sur le paysage et, au nord, elle se ferme tout en exprimant l’activité qu’elle contient. La proportion très élancée des modules évoque les anciennes fabriques horlogères qui privilégiaient, déjà à l’époque, la lumière et la métrique grâce à un dispositif constructif très en avance du point de vue de la modularité et de la préfabrication.